• Archeologia
  • Architettura

CASERMA ADRIANEA METRO C — AREA MUSEALE DELLA STAZIONE PORTA METRONIA

VALORIZZAZIONE IN REALTÀ AUMENTATA E MULTIMEDIALE

MUNICIPIO VII VIA IPPONIO 8

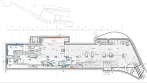
La stazione Porta Metronia (ex Amba Aradam) della Metropolitana C di Roma è esterna alle Mura Aureliane dalle quali dista circa 15 metri. La zona era del tutto sconosciuta dal punto di vista archeologico. Lo scavo all’interno dell’ingombro della stazione ha interessato una superficie complessiva di mq 3348 per una profondità di oltre 20 metri dal piano stradale, sino all’affioramento dei sedimi sterili. Tra i 7 e i 12 metri di profondità è stato messo in luce un complesso militare, realizzato in età traianea e ampliato nella prima metà del II secolo, durante il principato di Adriano. La struttura militare, nelle sue diverse articolazioni, vede pavimentazioni a mosaico, anche figurato, e rivestimenti parietali di pregio (affreschi). L’intero complesso militare è stato rimontato in un ambiente museale dedicato, all’interno della stazione di metropolitana. Oggetto del presente progetto interessa la parte della valorizzazione, fatta di realtà aumentata e virtuale, che consentirà di raccontare in modo particolarmente accattivante la storia della caserma e dell’intero sito archeologico con l’utilizzo di tecnologia di ultima generazione (con requisiti particolari di durabilità nel tempo), ideata in modo scientificamente rigoroso e insieme suggestivo, adatto a questo nuovo museo inserito in una stazione di metropolitana.

Attivo | Visitabile

Codice Unico di progetto
F89D21001030006
Responsabile del procedimento
DOTT.SSA SIMONA MORRETTA

Finanziamento
PNRR — M1C3 INVESTIMENTO 4.3: CAPUT MUNDI. NEXT GENERATION EU PER GRANDI EVENTI TURISTICI
Importo finanziamento
1.000.000,00 EUR
Importo lavori
768.600,00 EUR

Inizio lavori
FEBBRAIO 2026
Fine lavori
MARZO 2026

Direttore dei lavori
ARCH. ALESSANDRA CENTRONI
Progettista delle opere
CNR—CONSIGLIO NAZIONALE DELLE RICERCHE / ISPC—ISTITUTO DI SCIENZE DEL PATRIMONIO CULTURALE; CIVITA MOSTRE E MUSEI S.P.A.
Coordinatore della sicurezza
ARCH. PAOLO MORGANTI
Impresa appaltatrice
MOSAICO S.P.A.

Tag List