• ARCHEOLOGIA
  • ARCHITETTURA
  • ARTE

DOMUS LICEO CAVOUR

RILIEVO DEI RESTI ARCHEOLOGICI, RESTAURO E CONSOLIDAMENTO DELLE MURATURE E DEGLI APPARATI DECORATIVI, ADEGUAMENTO IMPIANTISTICO, VALORIZZAZIONE E DIVULGAZIONE

Municipo I RIONE MONTI, VIA DELLE CARINE 1

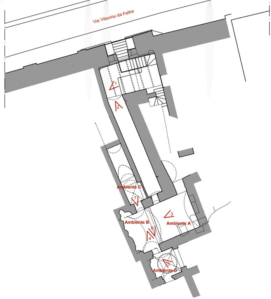
Le strutture archeologiche conservate sotto il Liceo Cavour costituiscono parte di una grande domus di periodo medio-imperiale (metà del II secolo d.C.) molto ben conservata, perché gli ambienti visibili, oggi interrati per quasi tutta la loro altezza, conservano ancora pitture e stucchi figurati fino alle volte. Si tratta di un complesso residenziale di ampie dimensioni, situato in un settore centrale dell’antica Roma, tra le Carinae e l’Esquilino, area abitata da figure di rilievo come Cicerone, Pompeo e Ottaviano ma archeologicamente poco nota perché fortemente danneggiata durante l’edificazione moderna. Gli scavi del 1895 per l’apertura di via degli Annibaldi rivelarono parte della domus e una fistula con il nome dei proprietari, tra cui un membro della gens Umbrius. La spettacolarità della conservazione pittorica di tali ambienti richiede che essi vengano svuotati per mettere in luce tutto l’apparato decorativo e permetterne il rilievo. Pertanto, l’obiettivo di tutelare il monumento e renderlo fruibile con un progetto realizzato insieme al corpo docente e agli allievi del Liceo Cavour assume un’importanza primaria e eccezionale. L’intervento PNRR prevede indagini diagnostiche, rilievo, restauro e consolidamento delle strutture e delle superfici decorate, adeguamento impiantistico e valorizzazione dell’area tramite strumenti divulgativi cartacei e digitali.

Attivo

Codice Unico di progetto
F89D21001150006
Responsabile del procedimento
ARCH. ALESSANDRA CENTRONI

Finanziamento
PNRR — M1C3 INVESTIMENTO 4.3: CAPUT MUNDI. NEXT GENERATION EU PER GRANDI EVENTI TURISTICI
Importo finanziamento
350.000,00 EUR
Importo lavori
210.000,00 EUR

Inizio lavori
SETTEMBRE 2025
Fine lavori
MARZO 2026

Direttore dei lavori
ARCH. ALESSANDRA CENTRONI
Progettista delle opere
ARCH. ING. GIULIA CARLUCCIO
Coordinatore della sicurezza
ARCH. ING. GIULIA CARLUCCIO
Impresa appaltatrice
EDIL COSTRUZIONI GROUP S.R.L. — SAMA SCAVI ARCHEOLOGICI

Tag List